Каталог товаров

Канавный пневмогидравлический подъемник 10т, рельсовый ПРК-10

Артикул: ПРК-10
Предзаказ
Есть в наличии
0 руб
280 501 руб
Самовывоз
  • Санкт-Петербург: уточняйте
  • Москва: уточняйте
  • Оптовый склад: уточняйте
Основные характеристики
  • Время подъема, сек:
    89
  • Время опускания, сек:
    100
  • Способ закачки масла в цилиндр:
    пневмо
  • Рабочее давление воздуха, бар:
    14
  • Расход воздуха, л/мин: i
    158
  • Модельный ряд: i
    ПРК
Способы доставки
  • Самовывоз (МСК и СПБ)
  • Курьерская доставка СДЭК
  • Экспресс Яндекс.Доставка Такси в МСК и СПб на условиях сервиса
  • ТК "Деловые линии" (отправка 2 раза в неделю, за свой счет довозим до терминала в городе отправления)
  • Транспортные компании (ПЭК, КИТ и др.) от 1500 р.
Способы оплаты
  • Наличными в офисе
  • Безналичный расчет с НДС (для юр.лиц и ИП)
  • Картой на сайте (Мир, Visa)
  • Картой в офисе (терминал)
  • Рассрочка и Кредит (уточняйте)
Описание

Канавный пневмогидравлический подъемник 10т 500мм ПРК-10 — передвижной

ПРК-10 — профессиональный канавный подъемник для автосервисов и СТО, рассчитанный на подъём грузовых и лёгковых автомобилей. Предназначен для регулярной эксплуатации в условиях мастерских и диагностических линий, где требуется надёжный и компактный подъём в канавах узкой ширины.

Устройство решает задачи подъёма, фиксации и безопасного опускания машин при техническом обслуживании, ремонте ходовой части и диагностике. Подходит для грузового и легкового транспорта, а также для спецтехники с подходящей посадкой; простая конструкция сокращает время обслуживания и обеспечивает стабильную работу в интенсивном режиме.

Преимущества Подъемник канавный пневмо ПРК-10

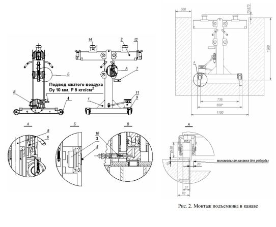
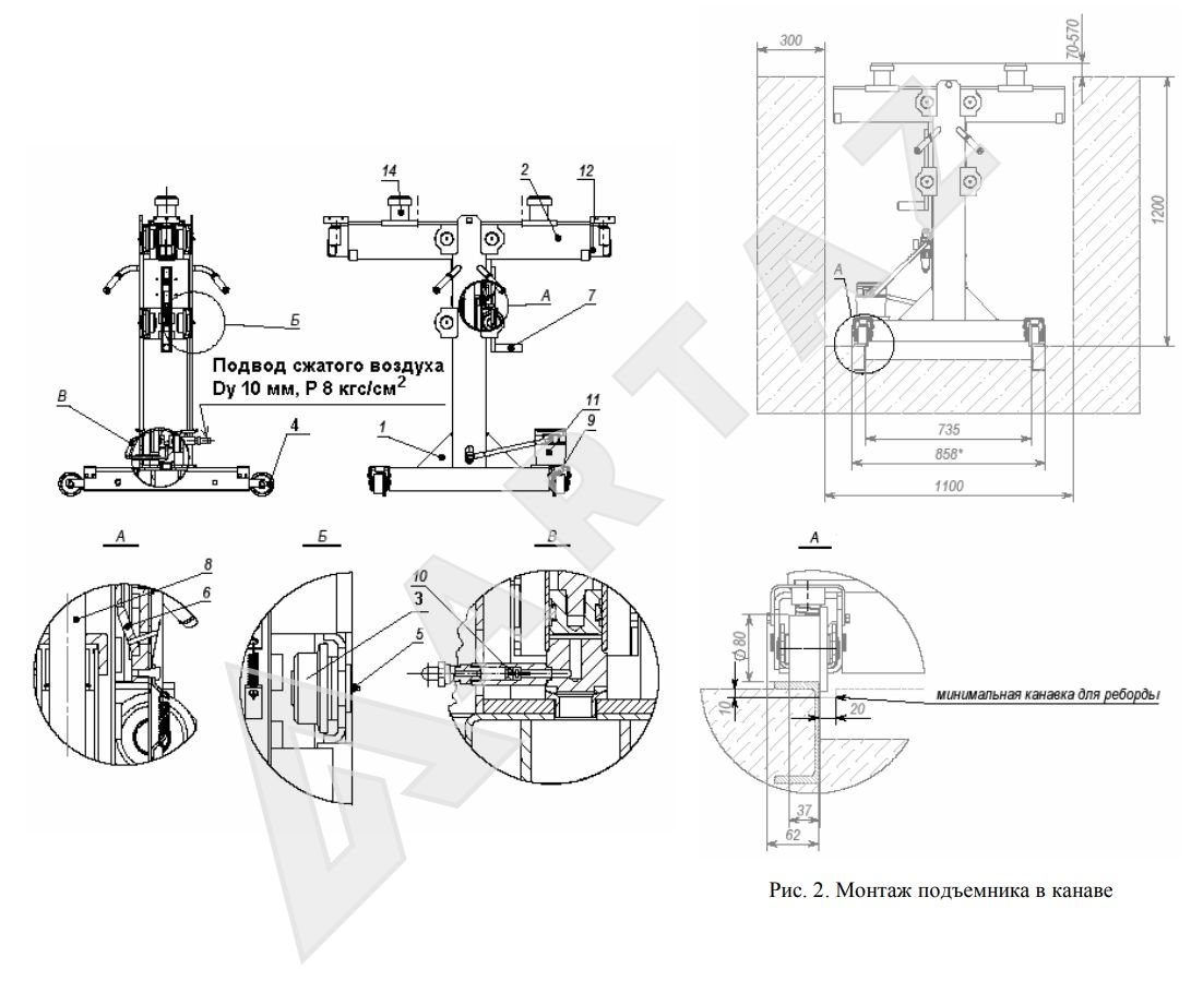
ПРК-10 сочетает высокую грузоподъёмность с возможностью эксплуатации в узких канавах от 700 мм, что расширяет его применение в плотной планировке сервисов. Пневмогидравлический привод обеспечивает плавный подъём и безопасное опускание при минимальном обслуживании. Регулируемые подхваты и многоуровневая система безопасности гарантируют универсальность при работе с разными типами рам и кузовов. Передвижная рама на рельсах упрощает позиционирование и исключает необходимость дополнительных монтажных работ.

  • Грузоподъемность: 10 т
  • Ход штока: 500 мм
  • Тип привода: пневмогидравлический
  • Вид штока: одиночный
  • Количество стоек: 1
  • Максимальное расстояние между точками подхвата: 875 мм
  • Мобильность: передвижной
  • Тип установки: рельсовый
  • Вес: 260 кг
  • Гарантия: 12 мес.
  • Производство: Россия

Комплект поставки Канавный подъемник ПРК-10

  • Подъемник - 1 шт.
  • Основание П150.10.03.000 - 2 шт.
  • Подхват П150.10.07.000 - 2 шт.
  • Опора ПЛД-5.06.00.000-01 - 2 шт.
  • Руководство по эксплуатации - 1 шт. ПРК-10.00.00.000 РЭ
  • Лист упаковочный - 1 шт.
Основные характеристики:
  • Тип установки:
  • Грузоподъемность, т:
    10
  • Мобильность:
    Передвижной
  • Назначение:
  • Количество стоек:
    1
  • Количество штоков:
    1
  • Ход штока, мм:
    500
  • Горизонтальное смещение:
    нет
  • Расстояние между точками подхвата max, мм:
    875
  • Минимальная ширина ямы, мм:
    700
Дополнительно:
  • Время подъема, сек:
    89
  • Время опускания, сек:
    100
  • Способ закачки масла в цилиндр:
    пневмо
  • Рабочее давление воздуха, бар:
    14
  • Расход воздуха, л/мин: i
    158
  • Модельный ряд: i
    ПРК
  • Вес, кг:
    260
  • Цвет:
    синий
  • Габариты изделия, мм: i
    1135×1029×1370

Информация на сайте носит ознакомительный характер и не является публичной офертой или истинной в последней инстанции. Внешний вид изделий и упаковка (если заявлена) могут отличаться от изображений на сайте (демонстрационный ориентировочный вариант). Производители оставляют за собой право менять характеристики без уведомления, в том числе в инструкциях (паспортах) - обязательно запрашивайте подтверждение значений ключевых характеристик.
В связи со сложностями с валютой, логистикой и импортом, просьба запрашивать подтверждения цены и наличия товара на складах в Москве и Санкт-Петербурге

Характеристики
Основные характеристики:
  • Тип установки:
  • Грузоподъемность, т:
    10
  • Мобильность:
    Передвижной
  • Назначение:
  • Количество стоек:
    1
  • Количество штоков:
    1
  • Ход штока, мм:
    500
  • Горизонтальное смещение:
    нет
  • Расстояние между точками подхвата max, мм:
    875
  • Минимальная ширина ямы, мм:
    700
Дополнительно:
  • Время подъема, сек:
    89
  • Время опускания, сек:
    100
  • Способ закачки масла в цилиндр:
    пневмо
  • Рабочее давление воздуха, бар:
    14
  • Расход воздуха, л/мин: i
    158
  • Модельный ряд: i
    ПРК
  • Вес, кг:
    260
  • Цвет:
    синий
  • Габариты изделия, мм: i
    1135×1029×1370
Инструкция по монтажу и эксплуатации — ПРК-10 Подъемник канавный, г/п 10 т
Документация
Отзывы
Пока нет комментариев
Написать отзыв
Имя получателя*
Email
Введите комментарий*
Инструкции и документация
Инструкция по монтажу и эксплуатации — ПРК-10 Подъемник канавный, г/п 10 т
280 501 руб